Destinasjoner
Kontakt
Favoritter
Huseier
Historisk byhus i Ærøskøbing
Ny på Campaya
Gratis avbestilling

5 Sengeplasser

3 Soverom

: 300 Meter

Beskrivelse

Her kan du bo i et av de små originale husene med tradisjonell sjarm og moderne fasiliteter.
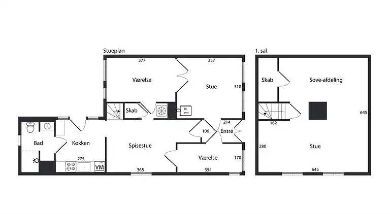
Huset er fredet og bygget i 1788, fordelt på to etasjer med 65 m² i underetasjen og 35 m² i overetasjen. Nede finnes to soverom (ett dobbeltrom og ett lite enkeltrom), en koselig stue, spisestue, godt utstyrt kjøkken og moderne bad med dusj og dampbad.
Overetasjen har et stort rom med to senger og mulighet for ekstra oppredning.
Huset har en sørvendt, lukket gårdsplass samt inngjerdet hage med plen og terrasse.

Huset ligger i en smal gate mellom hovedgaten og torget, bare noen hundre meter fra havn og strand. Ferjen er i gangavstand, parkering finnes ved havnen, og bussene på Ærø er gratis. To sykler står til disposisjon, og flere kan leies i nærheten.

Fasiliteter

Soverom
  • Sengeplasser : 5
  • Soverom : 3
  • Dobbeltsenger : 2
  • Enkeltsenger : 1
  • Barneseng
  • Barnesenger : 1
  • Klær oppbevaring
Baderom
  • Dusj
  • Rengjøringsprodukter
  • Hårføner
  • Baderom : 1
Avstander
  • Parkering : 300 Meter
  • Nabo : 5 Meter
  • Buss : 300 Meter
Fasiliteter - kjøkken
  • Utstyrt kjøkken
  • Oppvaskmaskin
  • Ovn
  • Kjøleskap
  • Kjøleskap størrelse (liter) : 1
  • Komfyr : Glasskeramikk
  • Kaffetrakter : Vanlig
  • Vannkoker
  • Avtrekksvifte
  • Servise og bestikk
  • Vinglass
  • Brødrister
  • Vann : Varmt og kaldt
Fasiliteter - innendørs
  • Type : Byhus
  • Størrelse m2 : 102
  • Rom : 5
  • Internett
  • Brettspill
  • TV
  • Flatskjerm-tv
  • Streamingtjenester : Chromecast
  • Radio
  • Babystoler : 1
  • Høy barnestol
  • Vaskemaskin
  • Strykejern
  • Strykebrett
  • Støvsuger
  • Røykvarsler
  • Gulvvarme : Baderom
  • Isolasjon : Full
  • Oppvarmingsmetode : Gasskjele
  • Trådløs
  • Byggeår : 1786
  • Renoveringsår : 2003
Fasiliteter - utendørs
  • Privat hage
  • Inngjerdet tomt
  • Tomt : Anlagt hage
  • Terrasse : Åpen terrasse
  • Uteplass
  • Terrassemøbler
  • Grill
  • Parkering : Utenfor tomten
  • Parkering : Gateparkering
  • Hagemøbler
  • Hage : Privat hage
Tilgjengelighet
  • Kjæledyr tillatt : Nei
  • Røyking : Ingen røyking
  • Barnevennlig
  • Eldrevennlig
  • Allergivennlig
  • Ungdomsgrupper : Ikke tillatt
  • Forretningsopphold : Ikke tillatt
  • Institusjonsgrupper : Ikke tillatt
Strand
Kunst, kultur og historie
Romantikk

Plassering av boligen

La deg inspirere av relaterte reisemål